


Pre-venta
Un refugio elevado en el paraíso
En uno de los destinos más exclusivos del Pacífico mexicano surge Ixtli Litibu, un desarrollo residencial concebido para quienes buscan algo más que una propiedad frente al mar. Ubicado dentro del privilegiado entorno de Punta de Mita, Nayarit, este proyecto redefine el concepto de vida costera a través de una arquitectura sofisticada, privacidad absoluta y vistas abiertas hacia la inmensidad de la Bahía de Banderas.


269
1.7 MDP
$ 10,OOO MXN el Mts2
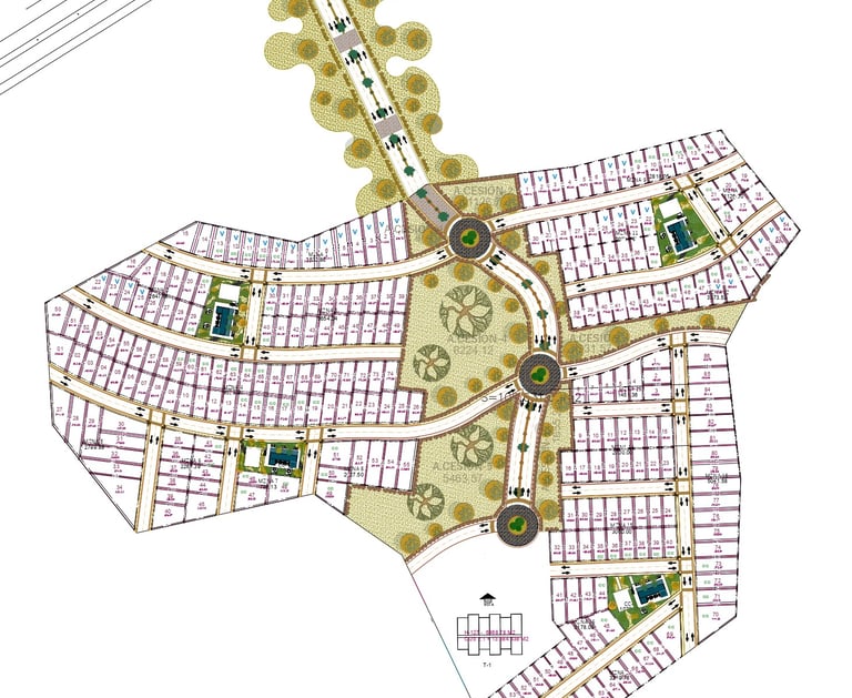
Lotes desde 170mts2
dentro de 4 Macrolotes con Casa Club
1
Macrolote para
desarrollo vertical
Punta de Mita
Punta de Mita es uno de los destinos más exclusivos del Pacífico mexicano. Rodeada por playas vírgenes, aguas cristalinas y naturaleza exuberante, esta península privada combina lujo, privacidad y un estilo de vida relajado.
Reconocida por sus residencias de alto nivel, campos de golf de clase mundial y resorts de prestigio, Punta de Mita ofrece un entorno donde la sofisticación convive con la serenidad del océano.

Amenidades
Acceso Controlado
Casa Club con Alberca
Áreas Sociales
1 Alberca en cada Macrolote
Áreas de Recreación
Áreas para Caminar
Bastas Áreas Verdes
Vialidades de Concreto Hidráulico



Lotes desde


Preventa
$ 1.7 MDP
con solo 10% de enganche
Financiamiento hasta
96 mensualidades
Precio por metro cuadrado $10,000 MXN
Disponibilidad
Galería











